


| 所 在 地 | 大阪府柏原市国分市場2丁目 |
|---|---|
| 交 通 | 近鉄大阪線 「河内国分」駅徒歩12分 |
| 価 格 | 完売御礼 |
| 土地面積 | 約57.93㎡(約17.52坪) |
| 建物構造 | 木造2階建または3階建 |
| 総区画数 | 限定1区画 |
|---|---|
| 地 目 | 宅地 |
| 用途地域 | 第2種中高層住居専用地域 |
| 建ぺい率 | 60% |
| 容 積 率 | 160% |
| 建築確認番号 | - |
| 取引態様 | 売主 |

参考PLAN 2階建
3LDK+パントリー+リビング収納
ガレージはインナータイプでプライバシーに配慮した造り。駐車をしていない間はお子様の安全な遊び場としてもお使いいただけます。
玄関を広く見せるよう階段横に格子状の仕切りを設え奥行きを感じる設計にしました。廊下の東側に窓を設けた明るい空間になっています。
東側に設けた二連窓がリビングを明るく照らします。キッチンにはパントリーを設けているので片付いた空間を保つことが可能です。
参考PLAN 2階建
4LDK〈ガレージ無しプラン〉
ガレージを設けないことで、4LDKの2階建が実現。LDKと繋がる和室は扉を開放することで約15.75帖のゆったりとした空間になります。
客間や家族のセカンドリビングとしてフレキシブルに使える和室。キッチンから目が届くので、小さなお子様の遊び場としても最適です。
大容量のシューズクローゼットや階段下を有効活用したリビング収納を設置。各居室にも収納を設けているので、家中がスッキリ片付きます。
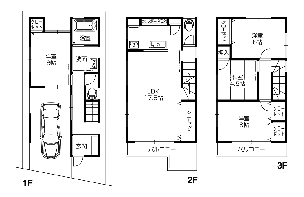
参考PLAN 3階建
4LDK+リビング収納
インナーガレージになっているので、雨が降っていても車に乗る際に濡れることがありません。
LDKはキッチンからリビングを見渡せる設計。お料理をしながらリビングで遊ぶお子様の様子を見守ることができます。
各個室はもちろん、リビングにも収納を設けました。季節の飾りやご家族共有でお使いになる荷物をしまっておくのにぴったりです。

急行が停車する近鉄大阪線「河内国分」駅まで徒歩12分。
国分小学校、国分中学校まで徒歩6分と教育環境に恵まれた立地。
スーパーマルヒまで徒歩7分と毎日の買い物も楽に行えます。
また、緑豊かな大和川親水公園まで徒歩7分と自然にも親しめる街です。
近鉄大阪線「河内国分」駅
国分小学校
国分中学校
全南病院
スーパーマルヒ 国分店
大和川親水公園